Call us: +592-226-2841 or +592-696-8969  info@bulkantimbers.com

Lumber Supplies & Dimensioned Stock

BTW produces mainly Greenheart, Purpleheart, Darina, Locust (Jatoba), Cumaru (Tonka Bean) which represent the commonly used woods within the Caribbean, known for their strength and beauty. The mills process these woods in various dimensions, and all 1” lumber is then KILN DRIED to ensure that the moisture content of the wood is reduced. Wood that is not kiln dried can suffer shrinkages after a time period which may result in undesirable outcomes after construction. Structural elements (2” lumber and above) can be air dried.

The following table outlines the various dimensions and profiles of lumber that is normally produced, but BTW wishes to assure that it can accommodate the requirements of our customers and work with them to ensure that their requirements are met. Therefore, the table is by no means an exhaustive list of sizes and profiles for which BTW is capable of supplying.

Dimensioned Stock
Nominal/Rough Size (in) Finished Size (mm)
1 x 2 18 x 44
1 x 3 18 x 65
1 x 4 18 x 90
1 x 6 18 x 140
1 x 8 18 x 190
1 x 10 18 x 240
1 x 12 18 x 290
Nominal/Rough Size (in) Finished Size (mm)
2 x 4 42 x 90
2 x 6 42 x 140
2 x 8 42 x 190
2 x 10 42 x 240
2 x 12 42 x 290
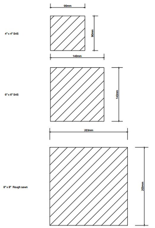
Nominal/Rough Size (in) Finished Size (mm)
4 x 4 90 x 90
6 x 6 140 x 140
8 x 8 203 x 203
Tongue & Groove Profiles